Leistungen:

  • Architekturleistungen aller Leistungsphasen
  • Bedarfsplanung nach DIN 18205
  • Flucht- und Rettungspläne nach DIN ISO 23601
  • Feuerwehrpläne nach DIN 14095

 

Rundumbetreuung:

Wir bieten unseren Bauherrn von der Vorplanung und Analyse bis zur Ausführungsplanung und Bauleitung das komplette Leistungsspektrum eines Architekten an. Dabei stehen Sie und Ihr individueller Bedarf im Mittelpunkt.

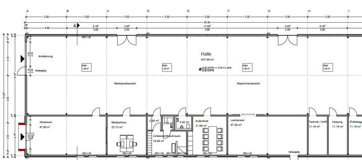
Gewerbehalle in Andernach

Tätigkeitsfelder:

  • Einfamilienhäuser
  • Geschosswohnungsbau
  • Verwaltungsbau
  • Industriebau
  • Versammlungsstätten
  • Kindergärten
  • Schulen 
  • Senioreneinrichtungen
  • Seminargebäude